Description
* For English see below! *
Ben jij op zoek naar een leuk 3-kamer appartement op een centrale locatie in Den Haag?
Kom dan snel kijken!
Gelegen aan de Loosduinsekade, aan de rand van het Valkenboskwartier, ligt deze bovenwoning met een oppervlakte van 60 m2. Het appartement beschikt over een nette keuken, een badkamer, separaat toilet, 2 slaapkamers en een balkon op het zuiden.
De locatie van dit appartement is ideaal. Het ligt in een kindvriendelijke buurt vlakbij het bekende Zuiderpark met diverse scholen, speeltuinen, sportfaciliteiten en winkels in de nabije omgeving. Verder zijn de A4 en A12 dichtbij, is er een treinstation in de buurt en een tramlijn letterlijk om de hoek. En het beste van alles? Dit appartement ligt op fietsafstand van het centrum van Den Haag en de stranden van Kijkduin en Scheveningen!
Indeling:
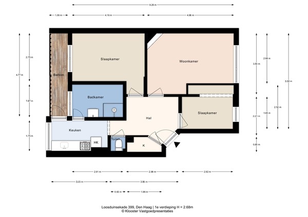
Bij binnenkomst van de woning kom je in de ruime hal van het appartement. Aan de voorzijde van het appartement bevinden zich de woonkamer en een slaapkamer. Aan de achterkant is nog een slaapkamer gelegen en zijn de keuken en badkamer gesitueerd.
De keuken is voorzien van een 4-pits inductiekookplaat, oven, vaatwasmachine, koelvriescombinatie en voldoende opbergruimte voor uw servies, kookgerei en kruiden. Ook hangt de ketel (2022) hier en heeft de keuken directe toegang tot het balkon aan de achterzijde.
De lichte badkamer beschikt over een ruime inloop(regen)douche, een wastafelmeubel en een wasmachine aansluiting. Verder heeft dit appartement een separaat toilet en een inpandige berging.
Kenmerken van deze woning:
- Overdracht kan op korte termijn plaatsvinden.
- Het appartement is gelegen op erfpachtgrond, waarvan de canon volledig is afgekocht.
- Woonoppervlakte van 60 m2.
- Centraal gelegen op fietsafstand van het centrum van Den Haag en het strand.
- Volledig dubbelglas.
- Energielabel D.
- VVE kosten van €100,- per maand.
- Jaarlijkse administratiekosten erfpacht: €103,32
Clausules van toepassing:
Ouderdomsclausule
Asbestclausule
Niet-zelfbewoningsclausule
* ENGLISH *
Are you looking for a nice 3 room apartment in a central location in The Hague?
Then come and have a look!
Located on the Loosduinsekade, on the edge of the Valkenboskwartier, is this upstairs apartment with a surface of 60 m2. The apartment has a neat kitchen, a bathroom, separate toilet, 2 bedrooms and a south-facing balcony.
The location of this apartment is ideal. It is located in a child-friendly neighborhood near the famous Zuiderpark with various schools, playgrounds, sports facilities and shops nearby. Furthermore, the A4 and A12 are close by, there is a train station nearby and a tram line literally around the corner. And best of all? This apartment is within cycling distance of the center of The Hague and the beaches of Kijkduin and Scheveningen!
Layout:
Upon entering the house you reach the spacious hall of the apartment. The living room and a bedroom are situated at the front of the apartment. At the rear there is another bedroom and the kitchen and bathroom are located there as well.
The kitchen is equipped with an induction hob, oven, dishwasher, fridge-freezer and sufficient storage space for your cooking utensils and spices. The boiler (2022) is also located here and from the kitchen you have access to the balcony at the rear end of the apartment.
The bright bathroom has a spacious walk-in (rain) shower, a washbasin and a washing machine connection. This apartment also has a separate toilet and an indoor storage room.
Features of this property:
- Transfer of the apartment can be done in short notice.
- The apartment is located on leasehold land, of which the canon has been fully bought off.
- Living area of 60 m2.
- Centrally located within cycling distance of the center of The Hague and the beach.
- Fully double glazing.
- Energy label D.
- VVE costs of €100 per month.
- Yearly administration cost leasehold land: €103,32