Beschrijving
SEE BELOW FOR ENGLISH
Ruim en licht 4-kamer appartement met groen uitzicht in Meerzicht!
Dit royale 4-kamer appartement van 92 m² is gelegen op een prettige locatie in de wijk Meerzicht en biedt alles wat je zoekt in een comfortabel appartement. De royale woonkamer heeft veel licht met vrij uitzicht op het groen. Doordat het appartement zich op de 9e verdieping bevindt, heeft u over uitzicht niet te klagen! Het appartement beschikt over een gesloten keuken met inbouwapparatuur zoals een vaatwasser, 4-pits gasfornuis en een afzuigkap. De master bedroom bevindt zich aan de voorkant van het appartement. Verder zijn er nog twee andere volwaardige slaapkamers die voldoende ruimte bieden voor een kantoor aan huis of een kinderkamer. Een licht en sfeervol appartement waar ruimte, comfort en functionaliteit samenkomen!
Centrale ligging met alle voorzieningen binnen handbereik:
De wijk Meerzicht staat bekend om zijn groene karakter, ruime opzet en uitstekende voorzieningen. Op loopafstand vind je winkelcentrum Meerzicht met supermarkten, speciaalzaken en eetgelegenheden. Parkeren is gratis en ruim voor de deur beschikbaar, wat ideaal is voor bewoners en bezoekers. Ook qua bereikbaarheid zit je hier goed: met de RandstadRail ben je binnen enkele minuten in het Stadshart van Zoetermeer of Den Haag, en via de uitvalswegen (A12 en N206) rijd je snel richting Rotterdam, Utrecht of Leiden. Bovendien zijn er meerdere scholen, sportverenigingen en recreatiegebieden in de directe omgeving. Een fijne, complete wijk voor jong en oud!
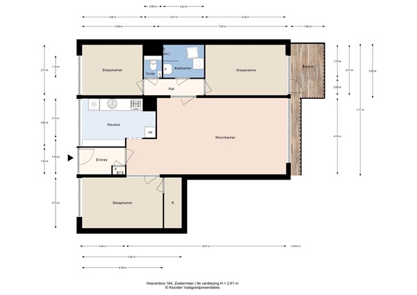
Indeling:
Met de lift bereikt u comfortabel de 9de woonverdieping. Vanuit de hal bereikt u de woonkamer. Vanuit deze ruimte zijn de andere ruimtes in het appartement te bereiken. Het appartement telt 3 slaapkamers en heeft daarnaast een badkamer met wasmachine aansluiting. Via één van de slaapkamers komt u op het balkon dat is gericht op het zuid-oosten.
Kenmerken:
- Bouwjaar: 1973
- Gebruikersoppervlak wonen 92m2
- Verwarming middels blokverwarming
- Warm water middels een elektrische boiler (€23,22 huur p.m.)
- De woning is voorzien van dubbele beglazing.
- Gezonde en actieve Vereniging van Eigenaren (VvE)
- Bijdrage VvE €276,64 (incl. €74,95 voorschot water en stookkosten)
- Eigen berging in de onderbouw
- Een overdekt zonnig balkon op het zuidoosten met een groen uitzicht
- Lift aanwezig
- Oplevering kan op korte termijn.
Bij woningen ouder dan 30 jaar hanteren wij standaard een asbest-en ouderdomsclausule.
ENGLISH
Spacious and bright 4-room apartment with a green view in Meerzicht Zoetermeer!
This spacious 92m² four-room apartment is conveniently located in the Meerzicht neighborhood and offers everything you could want in a comfortable apartment. The generously sized living room is flooded with natural light. Situated on the 9th floor, the view is unparalleled! The apartment features a separate kitchen with built-in appliances including a dishwasher, gas stove, and extractor hood. The master bedroom is located at the front of the apartment. There are also two other bedrooms, offering a good space for a home office or children's room. A bright and inviting apartment where space, comfort, and functionality come together!
Central location with all amenities nearby:
The neighborhood 'Meerzicht' is known for its green character, spacious layout, and excellent amenities. The Meerzicht shopping center, with supermarkets, specialty stores, and restaurants, is within walking distance. Parking is free and available in front of the building, ideal for residents and visitors. Accessibility is also excellent: the RandstadRail will take you to Zoetermeer city center or The Hague in just a few minutes, and the major highways (A12 and N206) offer quick access to Rotterdam, Utrecht, and Leiden. Furthermore, there are several schools, sports clubs, and recreational areas in the immediate vicinity. A pleasant, well-equipped neighborhood for all ages!
Layout:
The elevator provides easy access to the 9th floor. The hallway leads to the living room, which also provide access to the other rooms in the apartment. The apartment has three bedrooms and a bathroom with a washing machine connection. One of the bedrooms provides access to the southeast-facing balcony.
Features:
- Built in 1973
- Living area: 92m²
- Heating via district heating
- Hot water via an electric boiler (€23.22 rent per month)
- The house has double glazing.
- Healthy and active Homeowners' Association (HOA/VVE)
- HOA fee: €276.64 (including €74.95 advance payment for water and heating costs)
- Private storage unit in the basement
- Covered, sunny southeast-facing balcony with a green view
- Elevator available
- Delivery possible at short notice.
For properties older than 30 years, we apply an asbestos and age clause as standard.