Beschrijving
Kluswoning met potentie in Schiedam!
Ben je handig en zoek je een betaalbare woning die je helemaal naar eigen wens kunt moderniseren? Dan is Leliestraat 4 precies wat je zoekt! Deze tussenwoning biedt veel ruimte, drie slaapkamers en een zonnig balkon op het zuidoosten. En dat alles voor een aantrekkelijke vraagprijs van €249.000. Een ideale woning voor starters!
De woning ligt in een rustige straat in Schiedam met supermarkten, scholen en het centrum op loopafstand. Binnen enkele minuten ben je op station Schiedam Centrum of op de uitvalswegen richting Rotterdam en Delft.
Indeling:
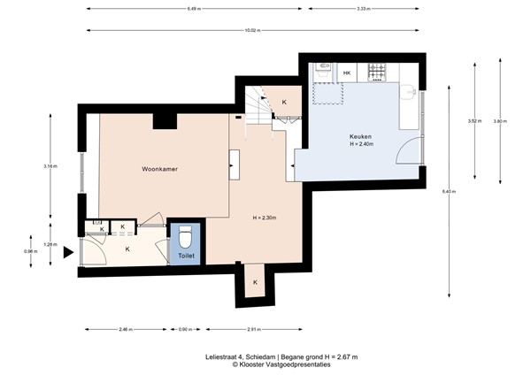
Je komt binnen in de hal, welke leidt naar een separaat toilet en de lichte woonkamer die uitkijkt op de straatzijde. De benedenverdieping biedt een prettige leefruimte met voldoende mogelijkheden om het opnieuw in te delen. In de woonkamer is de vloer opgehoogd met hout voor extra bergruimte. Deze ruimte kan echter ook weer worden weggehaald. De gesloten keuken bevindt zich aan de achterzijde van de woning en is voorzien van een vierpits gasfornuis, oven en koel-vriescombinatie. Hier hangt tevens de huurketel (Intergas Kompakt HRE, bouwjaar 2016).
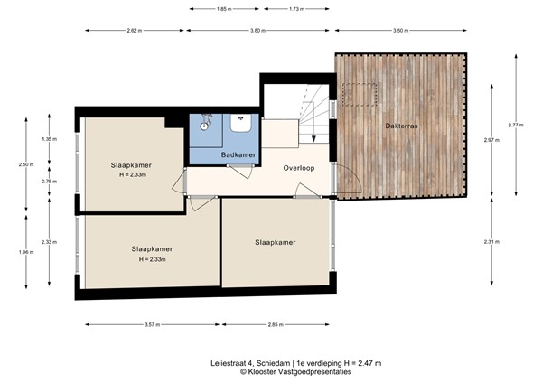
Wanneer je de trap op gaat naar de bovenverdieping, kom je bij de toegang tot het balkon op het zuidoosten, waar je heerlijk kunt genieten van de zon. Verder zijn er drie slaapkamers van goed formaat en een badkamer. Ook hier kun je met een frisse blik en wat liefde een fijne en moderne verdieping creëren.
Kenmerken:
- Ideaal voor starters of klussers.
- Optie om een openhaard te plaatsen.
- Oppervlakte van 75 m2.
- Overdracht kan op korte termijn plaatsvinden.
- Zonnig balkon op het zuidoosten.
- Verwarming via Intergas HRE-ketel (2016, huur).
- Centraal gelegen nabij winkels, openbaar vervoer en uitvalswegen.
- Niet-zelfbewoningsclausule van toepassing.
ENGLISH
Fixer-upper with potential in Schiedam!
Are you handy and looking for an affordable home which you can completely modernize to your own taste? Then Leliestraat 4 is exactly what you’re looking for! This townhouse offers a lot of space, three bedrooms, and a sunny southeast-facing balcony. All for an attractive asking price of €265,000. An ideal home for first-time buyers!
The property is located on a quiet street in Schiedam, within walking distance of supermarkets, schools, and the city centre. Within a few minutes, you can reach the station "Schiedam Centrum" or the main roads to Rotterdam and Delft.
Layout:
You enter through the hallway, which leads to a separate toilet and the bright living room overlooking the street. The ground floor offers a pleasant living space with plenty of options for reconfiguration. In the living room, the floor has been raised with wood for extra storage space. This space can also be removed. The closed kitchen is located at the rear of the house and is equipped with a 4-burner gas hob, oven, and fridge-freezer combination. The rental boiler (Intergas Kompakt HRE, built in 2016) is also located here.
If you go upstairs, you’ll find access to the southeast-facing balcony where you can enjoy the sun. There are also three well-sized bedrooms and a bathroom. With a bit of creativity and care, this can easily be transformed into a comfortable and modern floor.
Features:
- Ideal for first-time buyers or handymen.
- Option to install a fireplace.
- Living area of 75 m2.
- Transfer can be done in short notice.
- Sunny southeast-facing balcony.
- Heating via Intergas HRE boiler (2016, rental).
- Centrally located near shops, public transport, and main roads.
- Non-occupancy clause applicable.