Beschrijving
VANWEGE DE GROTE BELANGSTELLING VOOR DIT APPARTEMENT IS ER EEN BEZICHTIGINGSSTOP EN WERKEN WIJ MET EEN RESERVELIJST.
* FOR ENGLISH SEE BELOW *
Bent u op zoek naar een mooi appartement op een rustige locatie, maar nabij het grootste overdekte winkelcentrum van Nederland, The Mall of the Netherlands? Lees dan snel verder!
Op de vijfde verdieping in het goed onderhouden complex, verkopen wij een ruim en instapklaar appartement van maar liefst 86 m2! Het vierkamer appartement beschikt over maar liefst 3 slaapkamers, waardoor het zowel voor een gezin als starters met een kinderwens geschikt is.
Het appartement ligt in een rustige wijk met diverse scholen, kinderopvang en supermarkten. Ook bent u binnen enkele ogenblikken op de A4 of A44 richting Den Haag, Rotterdam of Amsterdam.
Het meest ideale? Dat is waarschijnlijk The Mall of The Netherlands. Dit grote winkelcentrum, voorzien van diverse eetgelegenheden, bioscoop, pub en de grootste winkels ligt op loopafstand van het appartement! Zo kunt u zowel overdag als in de avond er makkelijk op uit.
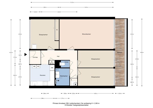
Indeling woning:
Vanuit de afgesloten entree van het complex, kunt u zowel per trap als per lift naar de 5e verdieping van het complex.
Bij binnenkomst vindt u de ruime hal en de entree van de keuken aan uw rechterhand. Deze keuken is voorzien van een 4pits inductieplaat, een nieuwe vaatwasmachine (2023), combi-oven en een koelvriescombinatie en diverse opbergruimtes voor uw servies, kookgerei en kruiden.
Via de hal komt u in alle ruimtes van het appartement. Zo is de masterbedroom aan de voorzijde van het appartement en vindt u de overige 2 slaapkamers en woonkamer aan de achterzijde. Aan deze ruimtes grenst ook het ruime balkon (zuid-westen) wat over de gehele breedte van het appartement loopt. Over ruimte niet te klagen!
Verder beschikt het appartement nog over een seperaat toilet, een wasruimte en badkamer. Deze ruimte is voorzien van een douche en wastafelmeubel.
Op de begane grond heeft het appartement nog over een ruime berging, waar u makkelijk uw fietsen in kwijt kunt.
In het kort:
- Overdracht kan op korte termijn plaatsvinden.
- Ruim appartement van 86 m2 groot.
- Centraal gelegen op loopafstand van overdekt winkelcentrum The Mall of The Netherlands.
- Volledig dubbelglas.
- Geïsoleerd in 2024.
- Instapklaar gemoderniseerd appartement.
- VvE bijdrage van €231,07 per maand + een voorschot van €76,94 per maand voor stookkosten.
- Eigen berging op de begane grond.
* ENGLISH *
Are you looking for a beautiful apartment in a quiet area, but close to the largest indoor shopping center in the Netherlands, The Mall of the Netherlands? Then read on!
On the fourth floor in the well-maintained complex, we sell a spacious and ready-to-move-in apartment of 86 m2! The four room apartment has 3 bedrooms, making it suitable for both a family and starters who want to start a family.
The apartment is located in a quiet area with several schools, daycare and supermarkets. By car, you are on the A4 or A44 towards The Hague, Rotterdam or Amsterdam in just a few minutes.
The greatest part? That is probably The Mall of The Netherlands. This large shopping center, with various dining options, cinema, pub and the well known companies, is within walking distance of the apartment! This way you can easily go out both during the day and in the evening.
House layout:
From the closed entrance of the complex you can reach the 5th floor of the complex by stairs or elevator.
Upon entering you will find the spacious hall and the entrance to the kitchen on your right. This kitchen is equipped with an induction cooktop, a new dishwasher (2023), combi-oven, a fridge-freezer combination and various storage spaces for your cooking utensils and spices.
Through the hall you reach all areas of the apartment. The master bedroom is at the front of the apartment and you will find the other 2 bedrooms and living room at the rear. The spacious balcony (south-west) is also adjacent to these areas, which extends across the entire width of the apartment. No complaints about space!
The apartment also has a separate toilet, laundry room and bathroom with a shower and washbasin.
The apartment has a spacious storage room on the ground floor where you can easily store your bicycles.
In brief:
- Transfer of the apartment can be done in short notice.
- Spacious apartment of 86m2.
- Centrally located within walking distance of the indoor shopping center The Mall of The Netherlands.
- Fully double glazing.
- Isolated the apartment in 2024.
- Ready-to-move-in apartment.
- VvE contribution of €231.07 per month + an advance of €76.94 per month for heating costs.
- Private storage room on the ground floor.