Beschrijving
See below for English
Ben jij op zoek naar een ruime woning in de Bollenstreek? Dan is deze hoekwoning in Hillegom precies wat je zoekt!
Deze woning heeft een ruime woonkamer met gesloten keuken, maar liefst 4 slaapkamers, een werkkamer/praktijkruimte, een vernieuwde badkamer (2024), een zonnige tuin op het zuid-westen, een eigen oprit én een garage. Kortom een heerlijk huis om in te wonen!
Over de buurt:
Deze eindwoning ligt middenin de bollenstreek, in het knusse Hillegom. Het dorpscentrum bevindt zich op slechts 10 minuten loopafstand, waar een groot aanbod van voorzieningen, winkels, supermarkten en horeca te vinden is. Ook zijn de kinderopvang, diverse basisscholen en een zwembad op loopafstand van de woning. Het treinstation is op fietsafstand voor een snelle verbinding richting Haarlem/Amsterdam en Leiden/Den Haag.
In het voorjaar is Hillegom zeer kleurrijk vanwege de volle bollenvelden, wat het een prachtige plek maakt om te wonen. Ben je meer van het strand? Ook dit is vlakbij te vinden bij de Langevelderslag.
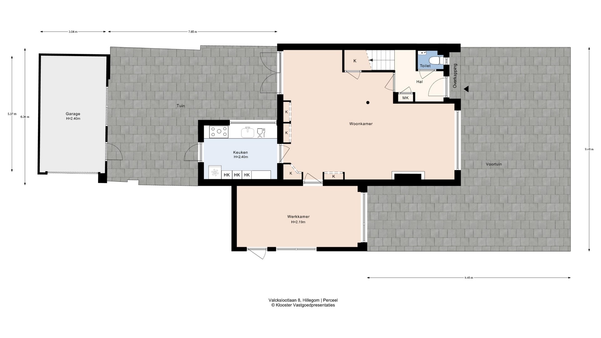
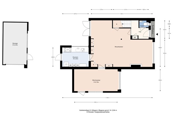
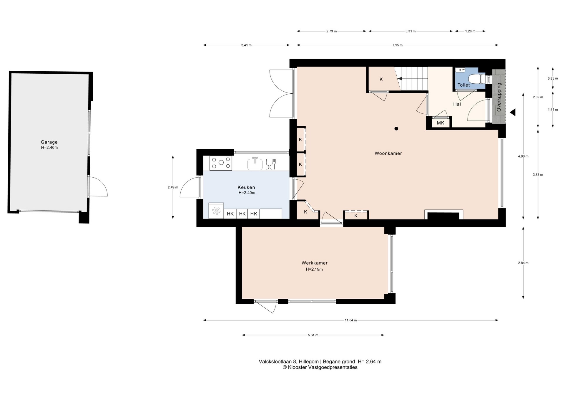
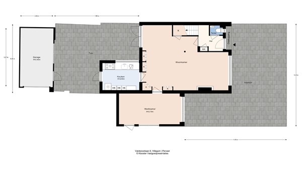
Begane grond:
Bij binnenkomst kom je in de ruime hal met toegang tot het toilet en de woonkamer. De woonkamer is zeer licht door de grote raampartijen aan weerskanten. Naast de woonkamer is de tweede garage omgebouwd en betrokken bij de woning. Op dit moment biedt deze ruimte een perfecte kans op een studeer- of werkkamer of zelfs praktijk aan huis.
De zonnige tuin op het zuid-westen is te betreden vanuit de keuken én vanuit de woonkamer via de openslaande deuren. Doordat de woning ook over een ruime voortuin beschikt, is er altijd wel een plekje in de zon te vinden!
De keuken is aan vernieuwing toe. De eerste aanzet was al gezet door gipsplaten aan het plafond te bevestigen, maar er moet nog worden gestuct. De keuken beschikt over inbouwapparatuur, namelijk een oven, vaatwasser en 4 pits gasfornuis met wokbrander.
Eerste verdieping:
Op de eerste verdieping bevinden zich drie slaapkamers. Aan de voorzijde zijn één slaapkamer en de vernieuwde badkamer gelegen. Deze badkamer beschikt over een toilet, inloopdouche en een wastafelmeubel. Aan de achterzijde zijn ook twee slaapkamers te vinden. De slaapkamers zijn van een mooi formaat en zijn uiteraard ook in te richten als kantoor of hobbykamer.
Tweede verdieping:
De trap leidt naar de zolderverdieping met een ruime slaapkamer en voldoende opslagruimte. Deze ruimte is op dit moment nog kaal en kan volledig naar eigen wens worden ingericht.
Kortom; over ruimte in deze woning niet te klagen!
Deze woning kan volledig naar eigen smaak gemoderniseerd worden. Door de ruimte, garage, en uitstekende ligging biedt deze woning een perfecte basis voor een prachtig thuis.
Heb je interesse in een bezichtiging? Vraag deze dan aan via de button 'neem contact op'.
Om het nog even extra fijn te maken: deze woning is ook in het weekend te bezichtigen!
Kenmerken van deze woning:
* In een fijne en kindvriendelijke buurt met alle voorzieningen op loopafstand, zoals scholen, kinderopvang en supermarkten
* Ruime woning van maar liefst 147 m2
* Mogelijkheden voor een praktijk aan huis
* Vernieuwde badkamer (2024)
* CV ketel uit 2018
* Middenin de Bollenstreek
* Eigen oprit én garage
* Zonnige achtertuin op het zuid-westen
* Perfecte woning voor doorstromers met een gezinswens
ENGLISH
Are you looking for a spacious home in the Dutch bulb-growing region (de "Bollenstreek")? Then this end-of-terrace house in Hillegom could be exactly what you’re looking for!
This property features a spacious living room with a separate kitchen, four bedrooms, a study room/home office, a recently renovated bathroom (2024), a sunny south-west facing garden, a private driveway, and a garage. In short, a wonderful home to live in!
About the area:
This end-of-terrace house is located in the heart of the famous bulb-growing region, in the charming town of Hillegom. The town centre is just a 10-minute walk away and offers a wide range of amenities, including shops, supermarkets, and cafés/restaurants. Childcare facilities, several primary schools and a swimming pool are also within walking distance. The railway station is easily accessible by bicycle, providing fast connections to Haarlem/Amsterdam and Leiden/The Hague.
In spring, Hillegom becomes particularly vibrant due to the colourful flower fields, making it a beautiful place to live. Prefer the beach? The coast is also nearby, with Langevelderslag just a short distance away.
Ground floor:
Upon entering, you are welcomed into a spacious hallway with access to the toilet and the living room. The living room is exceptionally bright thanks to large windows on both sides. Next to the living room, the second garage has been converted and incorporated into the house. This space currently offers an excellent opportunity for use as a study room, home office, or even a home-based practice room.
The sunny south-west facing garden can be accessed both from the kitchen and from the living room via French doors. As the property also includes a generous front garden, there is always a spot to enjoy the sun!
The kitchen is ready for refurbishment. Initial preparations have been made with plasterboard installed on the ceiling, although it still requires plastering. The kitchen is equipped with built-in appliances, including an oven, dishwasher, and a four-burner gas hob with wok burner.
First floor:
On the first floor are three bedrooms located. At the front of the property, you will find one bedroom and the recently renovated bathroom. The bathroom features a toilet, walk-in shower, and a washbasin. Two additional well-proportioned bedrooms are located at the rear, and these can of course also be used as a home office or hobby room.
Second floor:
The stairs lead to the loft floor, which offers a spacious fourth bedroom and a lot of storage space. This area is currently unfinished and can be fully customised to suit your needs. In short, this property offers an abundance of space!
This home can be fully modernised to your own taste. With its space, garage, and excellent location, it provides the perfect foundation for a beautiful family home.
Interested in arranging a viewing? Simply request one via the “contact us” button. To make it even more convenient, viewings are also available at the weekend!
Key features of the property:
- Located in a pleasant and family-friendly neighbourhood with all amenities within walking distance, including schools, childcare facilities, and supermarkets
- Spacious home of approximately 147 m²
- Potential for a home-based practice or office
- Recently renovated bathroom (2024)
- Central heating boiler installed in 2018
- Situated in the heart of the famous bulb-growing region (de "Bollenstreek")
- Private driveway and garage
- Sunny south-west facing rear garden